GARATGE – LOCAL POLIVALENT AMB ACCÉS DIRECTE DES DE CARRER
GARATGE – LOCAL POLIVALENT AMB ACCÉS DIRECTE DES DE CARRER
Vilafranca del Penedès
Preu: 75.000

Referencia : 111

Compartir:

Videos

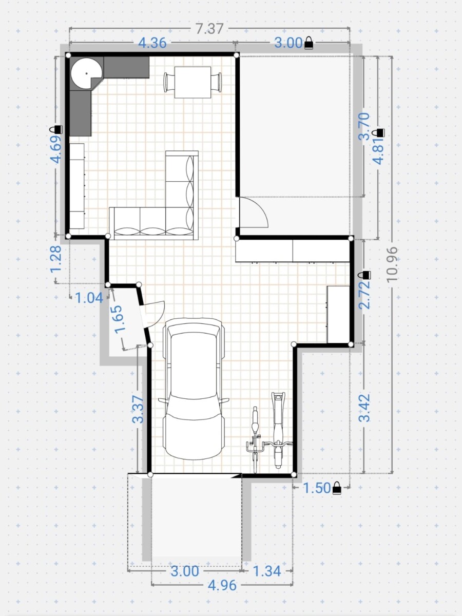
Es presenta una excel·lent oportunitat d’adquirir garatge / local polivalent en planta baixa, situat al carrer Montserrat, 22, en una de les zones més consolidades i cèntriques de Vilafranca del Penedès.

L’immoble disposa d’accés directe des de carrer, fet que el converteix en una peça molt còmoda i funcional, tant per a ús privat com professional. Compta amb una superfície construïda de 105 m², un despatx, un lavabo i una distribució interior molt ben aprofitada, que permet múltiples usos.

L’espai principal és ampli i diàfan, ideal com a garatge de grans dimensions, magatzem o taller. A més, el local incorpora:
•Zona de treball / emmagatzematge perfectament integrada
•Altell habilitat com a despatx o espai d’estudi
•Lavabo propi, un valor afegit molt poc habitual en aquest tipus d’immobles

Tot el conjunt es troba en molt bon estat de conservació, amb paviment continu, il·luminació instal·lada i una distribució pràctica que permet entrar i utilitzar-lo des del primer dia, sense necessitat d’obres.
Com a element diferencial, el local disposa de trapes al paviment amb accés a espais inferiors, ideals per a emmagatzematge addicional o usos especials, aportant versatilitat i valor.

Ubicat dins d’un edifici construït l’any 1974, en una finca amb divisió horitzontal, aquest immoble és perfecte per a:
•Particulars que busquin un gran garatge privat
•Professionals que necessitin espai auxiliar, taller o arxiu
•Col·leccionistes o aficionats que requereixin un espai singular i segur
•Inversors que vulguin un actiu sòlid, amb demanda estable

Un local amb caràcter, amplitud i moltes possibilitats, en una ubicació cèntrica i ben comunicada.

Producte poc habitual al mercat. Ideal per a qui valora l’espai, l’accessibilitat i la polivalència.

Característiques

Superfície m2 :
105

Població :
Vilafranca del Penedès

Barri/Zona :
Centre

Certificat Eficiència :
Exempt

Habitacions :
0

Banys :
1

Ubicació